Tiny House Plattegronden
- Home
- Tiny House Plattegronden
Tiny Houses zijn tegenwoordig razend populair in Nederland, en terecht! Deze kleine, knusse en duurzame huisjes bieden namelijk een schat aan voordelen. Maar zoals het gezegde luidt: het zit hem allemaal in de details. Daarom is een goed ontworpen plattegrond essentieel. Laten we samen op verkenning gaan!
Op zoek naar een totaal oplossing voor de plaatsing van een Tiny House? Gebruik de services van Tiny House Hub.
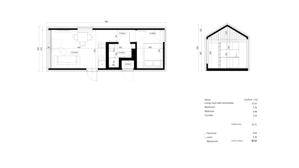
Malmo Plattegrond: Scandinavisch top design
Het Malmo model is perfect voor de liefhebbers van Scandinavisch design. Met zijn strakke lijnen, natuurlijke materialen en praktische indeling is dit Tiny House een toonbeeld van stijl en efficiëntie. Laten we de plattegronden onder de loep nemen!


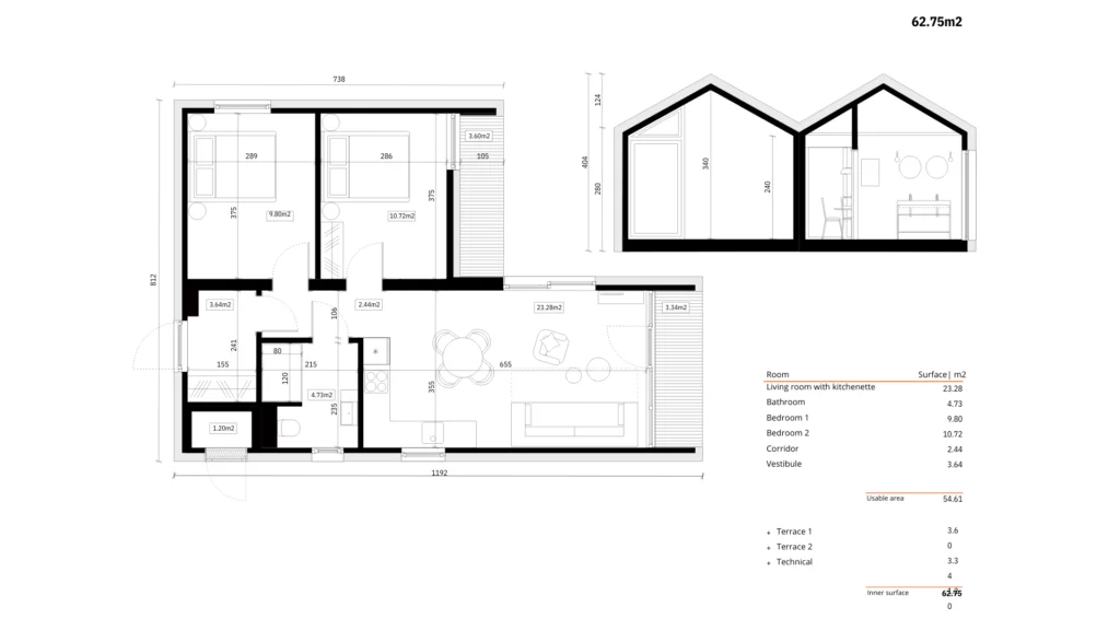
Stuga Plattegrond: Luxe, Groot & Modern
De plattegrond van het Stuga model is slim ingedeeld met een open woonkamer en keuken, een comfortabele slaapkamer en een functionele badkamer. En laten we het ruime terras niet vergeten – perfect voor zwoele zomeravonden!

Vista Plattegrond: Een panoramisch kunstwerk
Ons Vista model is een architectonisch hoogstandje. Dankzij de grote ramen en het panoramisch uitzicht is dit het Tiny House een waar kunstwerk waarin je kunt wonen.

Aanpassen en personaliseren van plattegronden: Laat je creativiteit de vrije loop!
Bij Tiny House Hub begrijpen we dat iedereen uniek is in zijn of haar wensen. Daarom bieden wij ook de mogelijkheid om je Tiny House volledig Custom te laten maken met een volledig andere plattegrond die aan te passen is naar jouw wensen. Of je nu een grotere keuken wilt, extra opbergruimte of een kantoorruimte, alles is mogelijk bij ons.
Juridische aspecten van een Tiny House: De regels van het spel
Het is belangrijk om op de hoogte te zijn van de regels en wetgeving omtrent tiny houses in Nederland. Vergunningen, grondzaken en gemeentelijke regels kunnen per locatie verschillen, dus zorg ervoor dat je goed geïnformeerd bent. (Wij kunnen ook helpen *contact*)
